Müük

Ristiku tn 28, Õle tn 27, Õle tn 27a, Tallinn

3,150,000
3,150,000

Overview

  • ID No

    23802

About This Listing

Elamuarendusprojekt Pelgulinnas!

Detailplaneering tehtud

Lisainfo: elekter, tsentraalgaas, kanalisatsioon, ühistransport

3 kõrvuti arenduskinnistut Pelgulinnas – kokku 1867 m2:

Ristiku tn 28 ja Õle tn 27 kinnistule on välja antud ehitusload, Ristiku tn 28 kinnistul on ka alustatud ehitustöödega. Õle tn 27a on koostatud eskiisprojekt: Olemasoleva asutuse hoone 33% laiendamine ja ümberehitus. Kõik 3 kinnistut kuuluvad samale omanikule ning on plaanitud liita ühte tervikusse. Kolmele kinnistule on koostamisel terviklik katendite ja maastikuarhitektuuri projekt, mille eesmärgiks on terviklikult lahendada hooviala ühtse tervikuna.

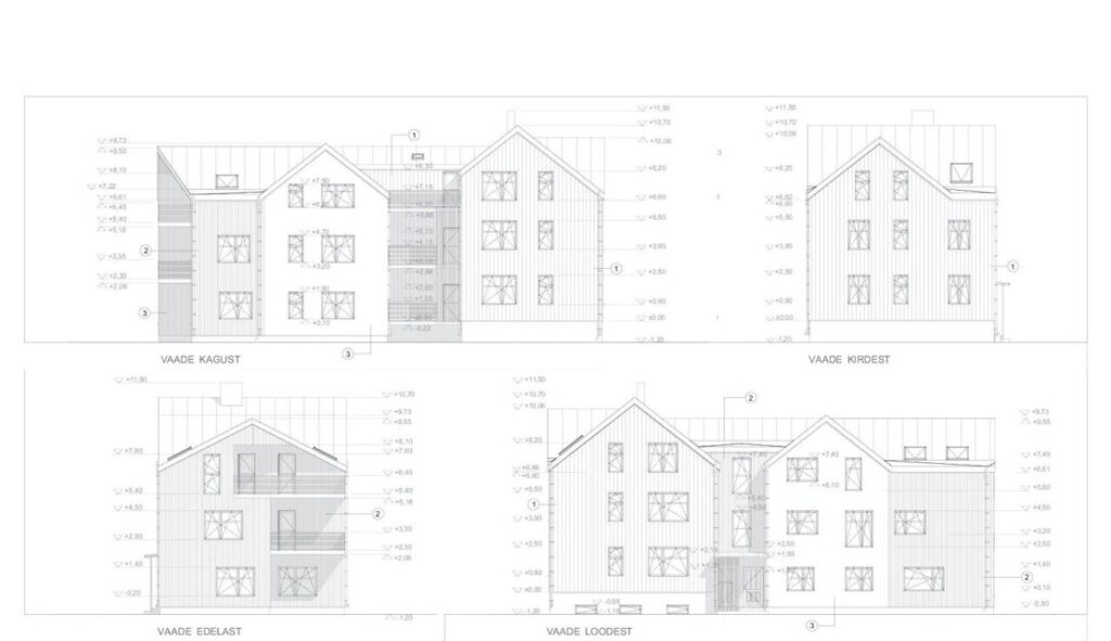
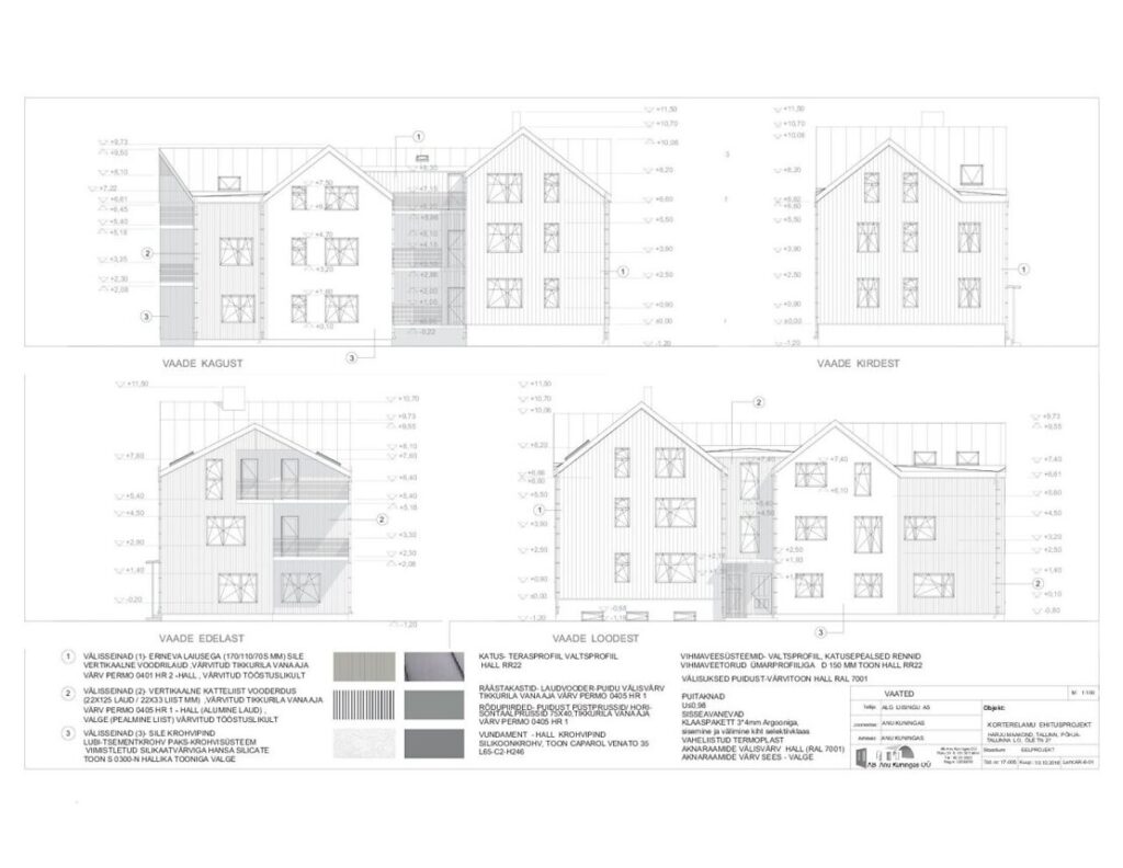
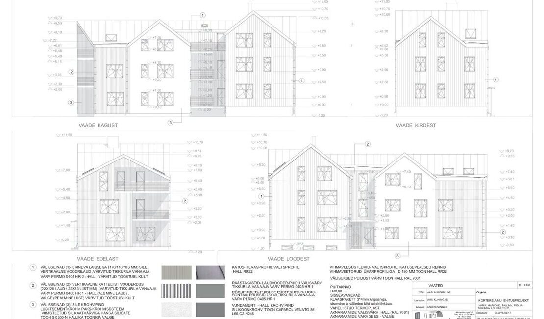
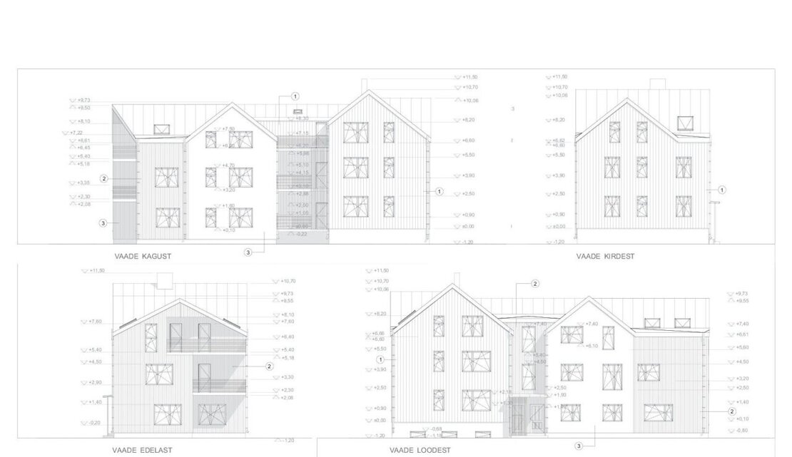
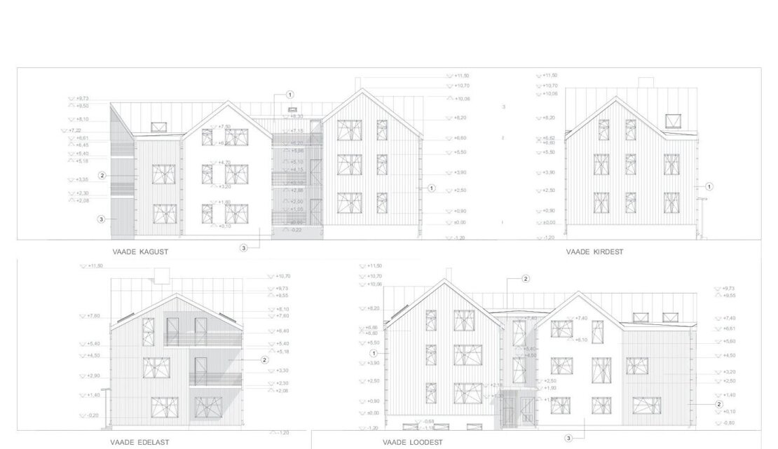
Kokku on kolmele kinnistule planeeritud 22 korterit ja 14 parkimiskohta (4 parkimiskohta Ristiku 28 kinnistul, 3 parkimiskohta Õle 27A kinnistul ja 7 parkimiskohta Õle 27 kinnistul) ning 36 jalgrattakohta.

Õle tänav 27 hoonele on ehitusloa projektiga kavandatud 8 korterit, Ristiku tänav 28 kinnistule on ehitusloa projektiga kavandatud 8 korterit, Õle tn 27a kinnistule on projekteeritud 6 korterit.

1.Ristiku tn 28, 689 m2 (katastritunnus 78408:803:0157) elamumaa 100%, k.r. reg.nr 22955001. Projekteeritud on 8 korteriga 2-korruseline katuse- ja keldrikorrusega elamu korterite pinnaga kokku 453,6m2
2.Õle tn 27, 824 m2 (katastritunnus 78408:803:0117) ärimaa 100%, k.r. reg.nr 19341301. Õle tänav 27 hoonele on ehitusloa projektiga kavandatud 8 korterit korterite pinnaga kokku 473,0m2
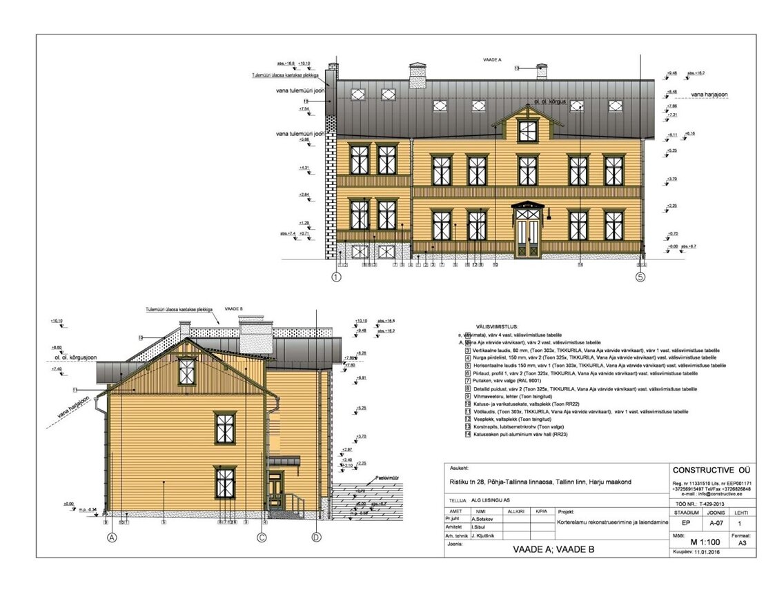
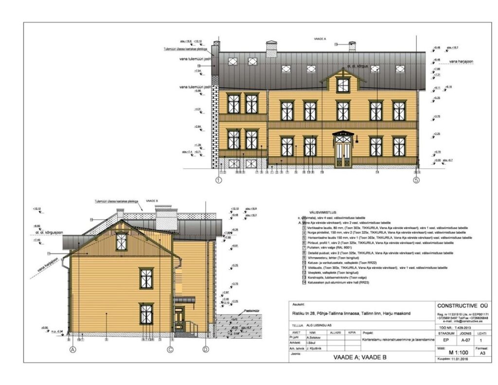
3.Õle tn 27A, 354 m2 (katastritunnus 78408:803:0162) elamumaa 100%, k.r. reg.nr 23122601, naabriks on Õle tn poole Õle 27 kinnistu ja Ristiku tn poole Ristiku tn 28 kinnistu. Õle tn 27a on ehitatud 1928. aastal ning Karl Treumanni (hilisema nimega Karl Tarvas) projekteeritud. Hoone on projekteeritud Johannes Oha savitööstuse laoruumideks. 1958. aasta inventeerimisjooniste järgi on hoone nimetuseks „Asutuse hoone“.

Rekonstrueeritava-laiendatud hoone gabariidiks on 16,4 x 9,2 m = 151 m2. Maapealse osa korruste arv 4 (ajalooline hoone 3+1 korrust, juurdeehitus 2+1k) brutopinnaga 478m2. Rekonstrueerimise eesmärgiks on väärikalt taastada ja eksponeerida ajaloolise hoone väärikas osa ja liita sellele tiibhoone ehitisealuse pinna mahus kaasaegne kuubik, kompileerides erinevaid asutuse hoone materjale ka uues hooneosas.
Planeeritud on 6 korterit, brutopinnaga 390m2, netopinnaga 324,3m2. Igal korrusel 2 korterit. 3.korruse üks korter on ühendatud 3. ja 4. korrusel.

Korterid on kompaktsed, 1-, 2- 3- ja 4-toalised + läbi kahe korruse 5-toaline perekorter. Korteritel on rõdud, 1.korruse korteritel väliterrass.

Elektriliitumised 3x 25A olemas!

HINNALE LISANDUB KM!

* 3D pildid on illustreeriva iseloomuga

Eelised

  • Objekti tüüp Korter
  • Parkimine Jah
  • Mugavused Parkimine Terrass

Map Location

Ristiku tn 28, Tallinn ,10320,Tallinn,Harjumaa,Estonia