Продажи

Ristiku tn 28, Õle tn 27, Õle tn 27a, Tallinn

3,150,000
3,150,000

Обзор

  • ID №

    23803
  • Тип объекта

    Квартира
  • Парковка

    Да
  • Статус

    Продается

Больше информации о проекте

Проект жилой застройки в Пельгулинне!

Детальная планировка сделана

Дополнительная информация: электричество, центральное газоснабжение, канализация, общественный транспорт

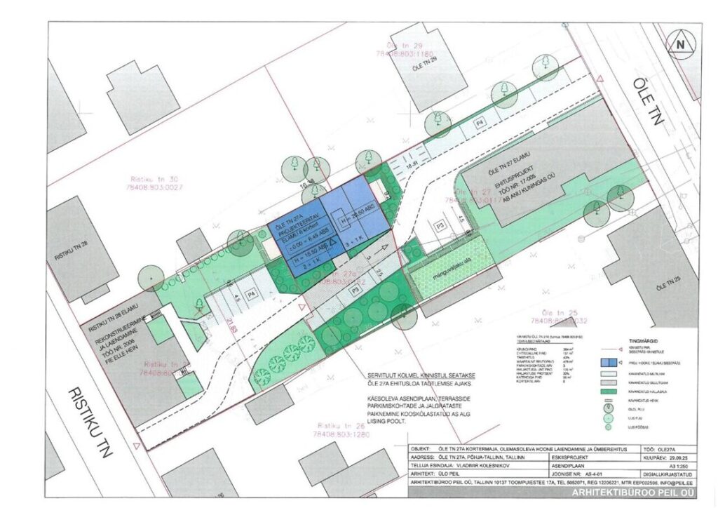
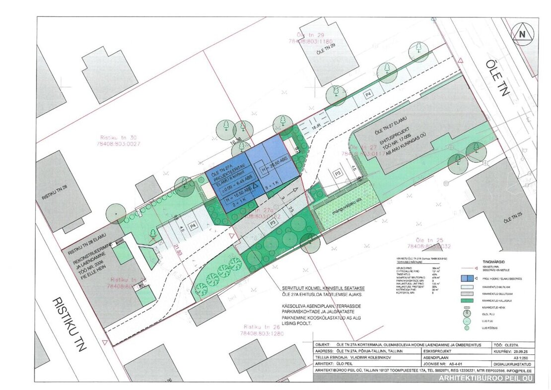
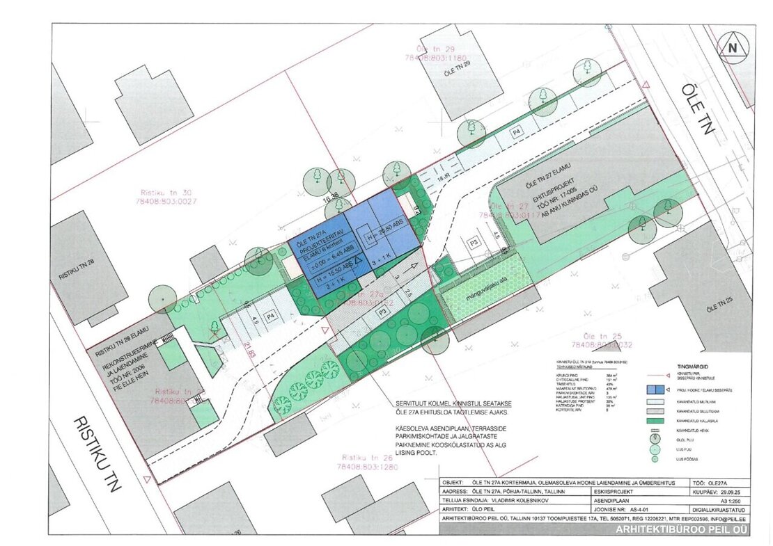
3 смежных участка под застройку в Пельгулинне – общая площадь 1867 м²:

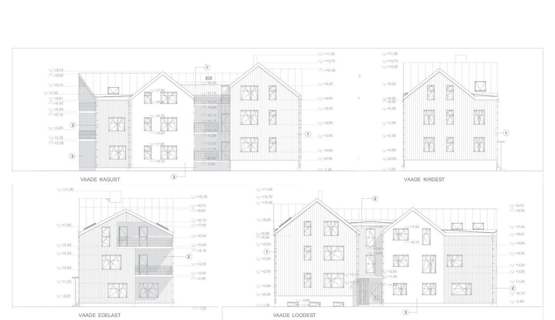
Получены разрешения на строительство на участках по адресам Ristiku tn 28 и Õle tn 27, также начались строительные работы на участке по адресу Ristiku tn 28. Для участка Õle tn 27a подготовлен эскизный проект: расширение на 33% и реконструкция существующего здания учреждения. Все 3 участка принадлежат одному владельцу и планируется объединить в одно целое. Для всех трех участков разрабатывается комплексный проект благоустройства и ландшафтного дизайна, цель которого – комплексное решение проблемы благоустройства двора как единого целого. В общей сложности на трех объектах планируется разместить 22 квартиры и 14 парковочных мест (4 парковочных места на объекте по адресу Ristiku 28, 3 парковочных места на объекте Õle 27A и 7 парковочных мест на объекте Õle 27), а также 36 мест для велосипедов.

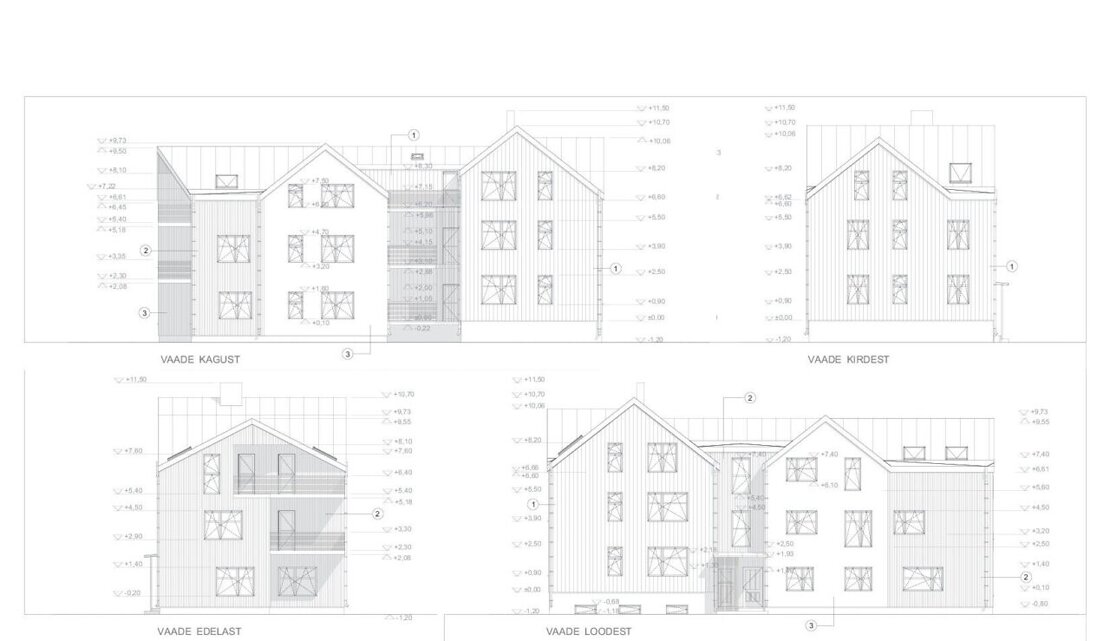
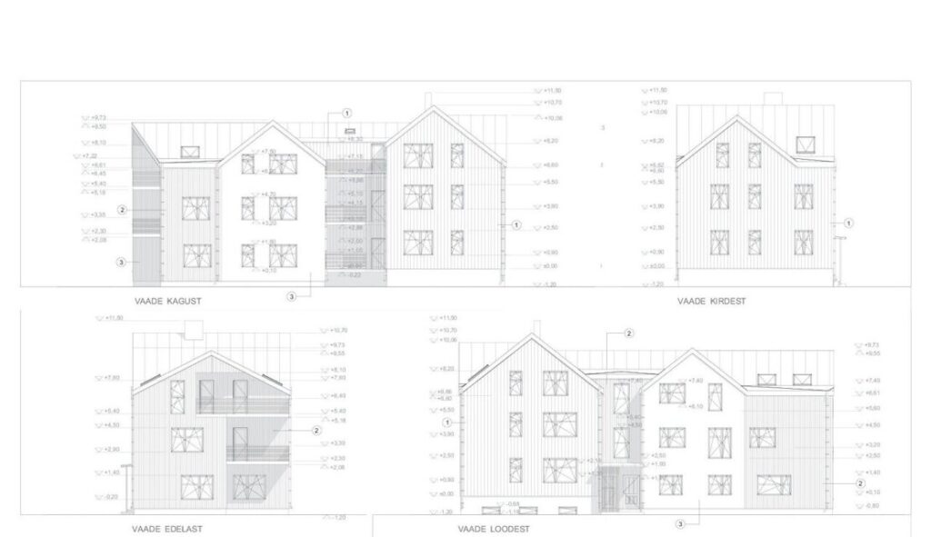
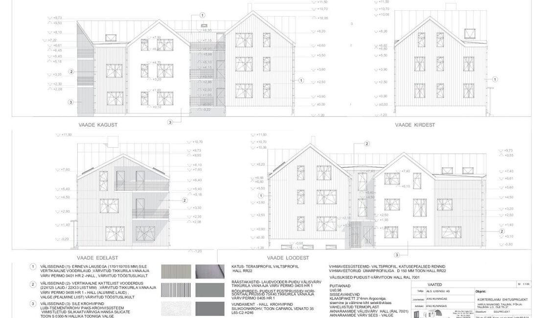
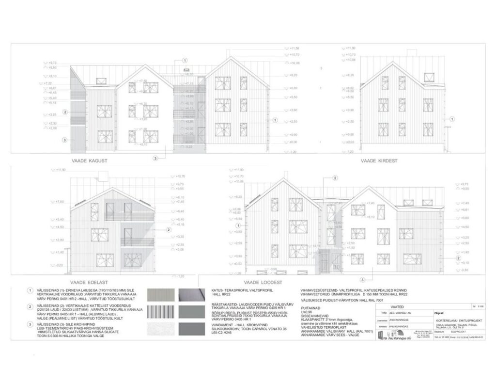
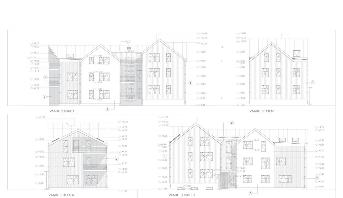
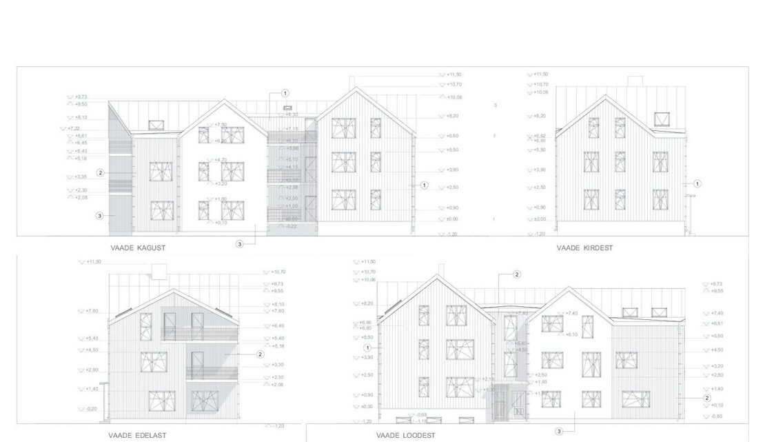
В проекте, на который получено разрешение на строительство, в здании по адресу Õle street 27 запланировано 8 квартир, в проекте, на котором получено разрешение на строительство, в здании по адресу Ristiku street 28 запланировано 8 квартир, в здании по адресу Õle street 27a запланировано 6 квартир.

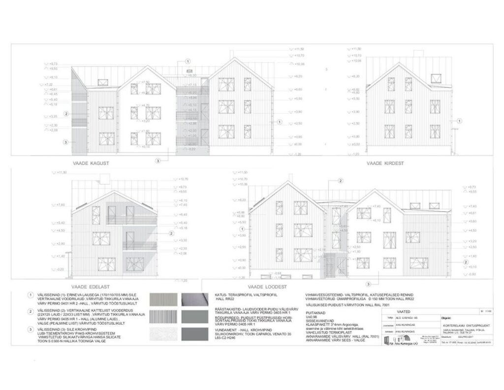
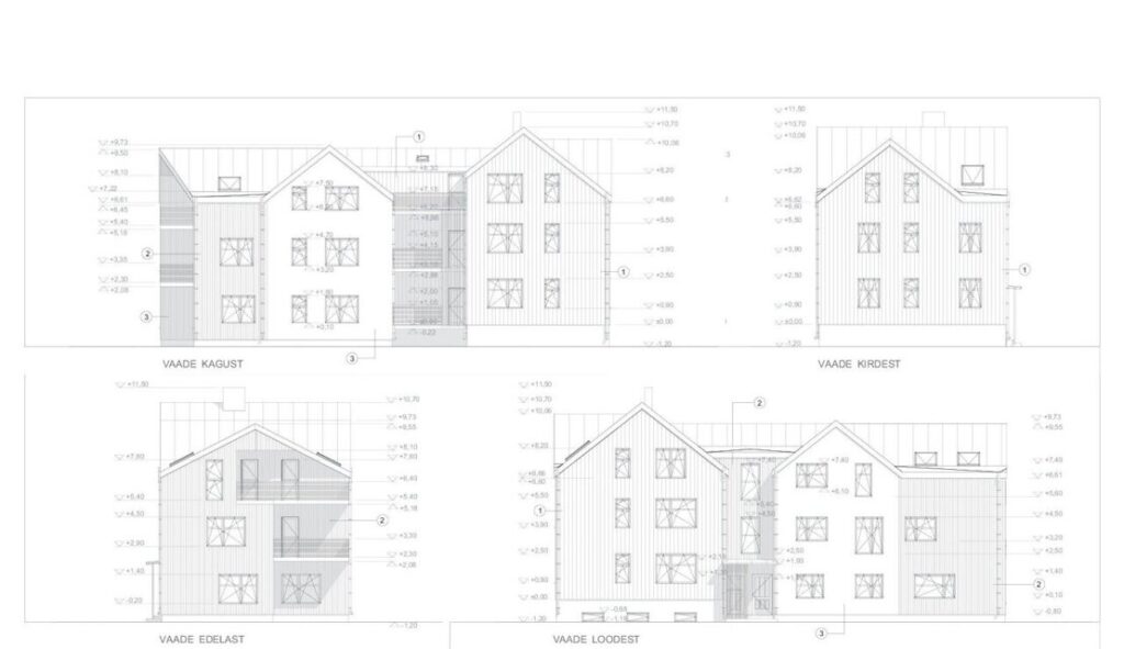
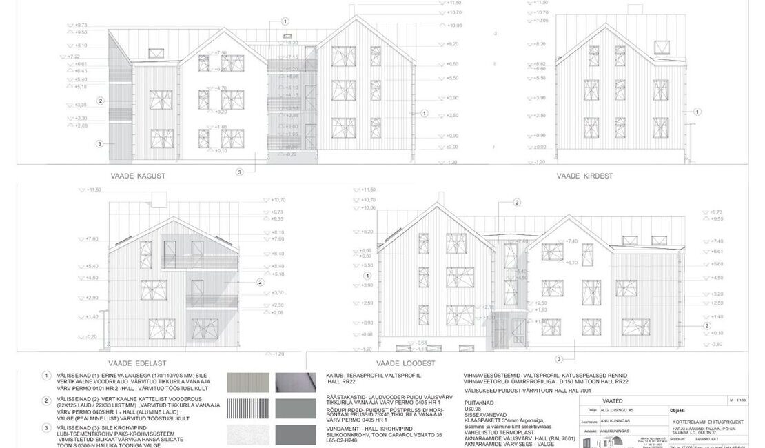
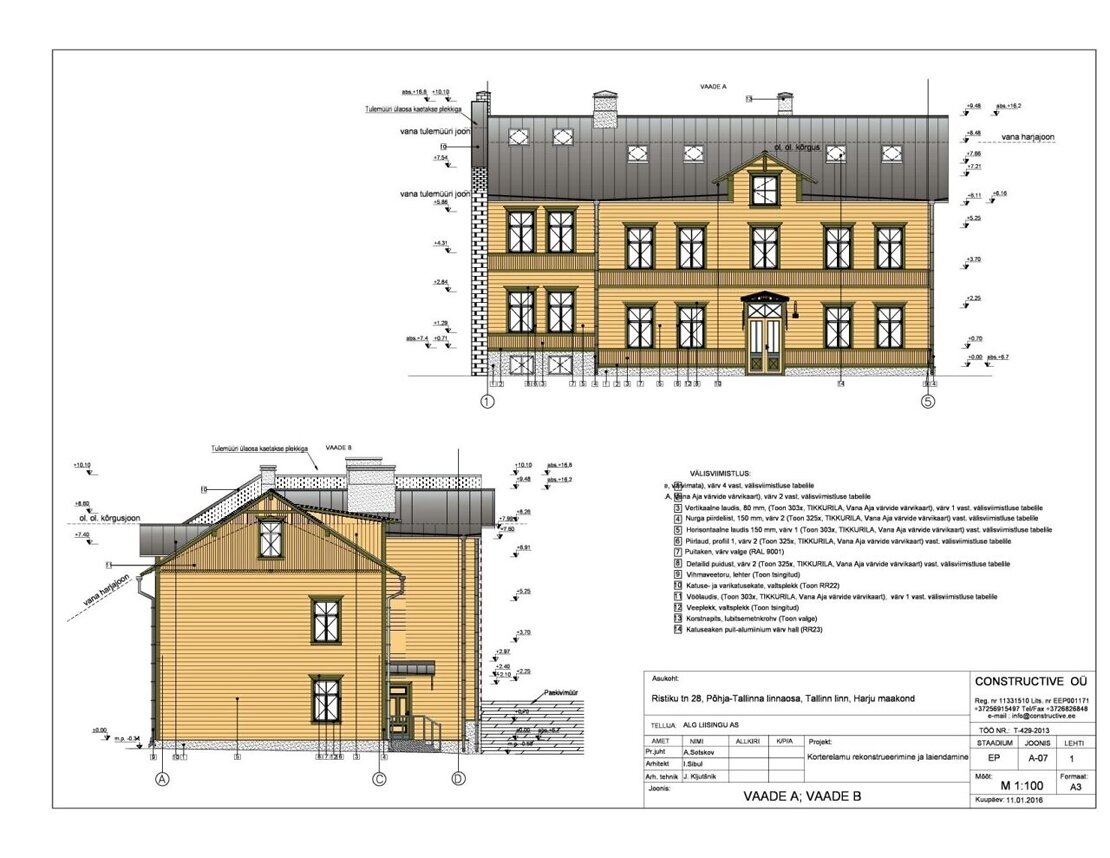
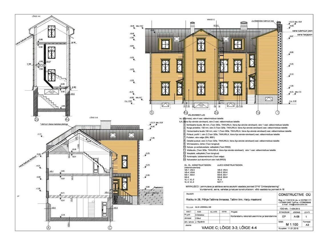
  1. Улица Ristiku, 28, 689 м2 (кадастровый код 78408:803:0157), жилой участок 100%, рег. нр 22955001. Проект двухэтажного жилого дома с 8 квартирами, крышей и подвалом общей площадью 453,6 м2.
  2. Участок  Õle tn 27, 824 м2 (кадастровый код 78408:803:0117), 100% коммерческой земли, рег. нр 19341301. Проект здания по адресу 27 включает 8 квартир общей площадью 473,0 м2.
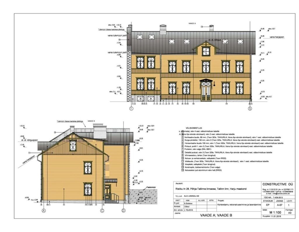
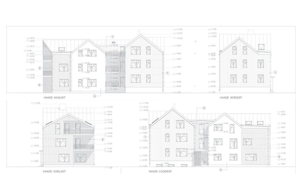
  3. Участок Õle tn 27A, 354 м2 (кадастровый код 78408:803:0162), 100% жилой земли, рег.нр 23122601, соседями являются участок  Õle tn 27 и Ristiku tn 28. Здание по адресу Õle tn 27a было построено в 1928 году по проекту Карла Троймана (позже Карла Тарваса). Здание было спроектировано как склад для глиноперерабатывающего предприятия Йоханнеса Оха. Согласно инвентарным чертежам 1958 года, здание называется «Здание учреждения».

Размеры реконструированного и расширенного здания составляют 16,4 x 9,2 м = 151 м2. Количество этажей надземной части — 4 (историческое здание — 3+1 этажа, пристройка — 2+1 этаж) общей площадью 478 м2. Цель реконструкции — придать достоинство и эффектность сохранившейся части исторического здания, а также добавить современный куб в объем строящейся части крыла, используя в новой части здания различные материалы из здания учреждения.

Планируется 6 квартир общей площадью 390 м2 и чистой площадью 324,3 м2. По 2 квартиры на каждом этаже. Одна квартира на 3-м этаже соединена с 3-м и 4-м этажами.

Квартиры компактные, 1-, 2-, 3- и 4-комнатные, а также одна 5-комнатная семейная квартира на двух этажах. Квартиры имеют балконы, квартиры на 1-м этаже имеют открытую террасу.

Имеются электрические подключения 3x 25А!

НДС БУДЕТ ДОБАВЛЕН К ЦЕНЕ!

* 3D-изображения являются иллюстративными

 

 

 

Детали

  • Тип объекта Квартира
  • Парковка Да
  • Статус Продается

Удобства

Удобства:
  • Паркинг
  • Терраса

Расположение на карте

Ristiku tn 28, Tallinn ,10320,Tallinn,Harjumaa,Estonia