Overview
-
ID No
24144
About This Listing
KINNISTU PROJEKTI JA KEHTIVA EHITUSLOAGA
Eksklusiivne, originaalsust rõhutav krunt privaatsust, rohelust ja hingamisruumi hindavale inimesele.
Kinnistu paikneb privaatses, looduslikult väga ilusas kohas.
Kinnistul on looduslik loopealne kooslus, osaliselt kaetud metsaga (kõrghaljastuses valdavalt kased, kadakad).
Kinnistu sissesõidule rajatud kaarekujuline valgustusega paekiviaed.
Sobib hästi suurele perele, kes soovib kodu privaatses ja avaras asukohas.
Katastritunnus 19801:001:1399
Pindala 7001 ㎡
Elamumaa 100%
Projekt – olemas
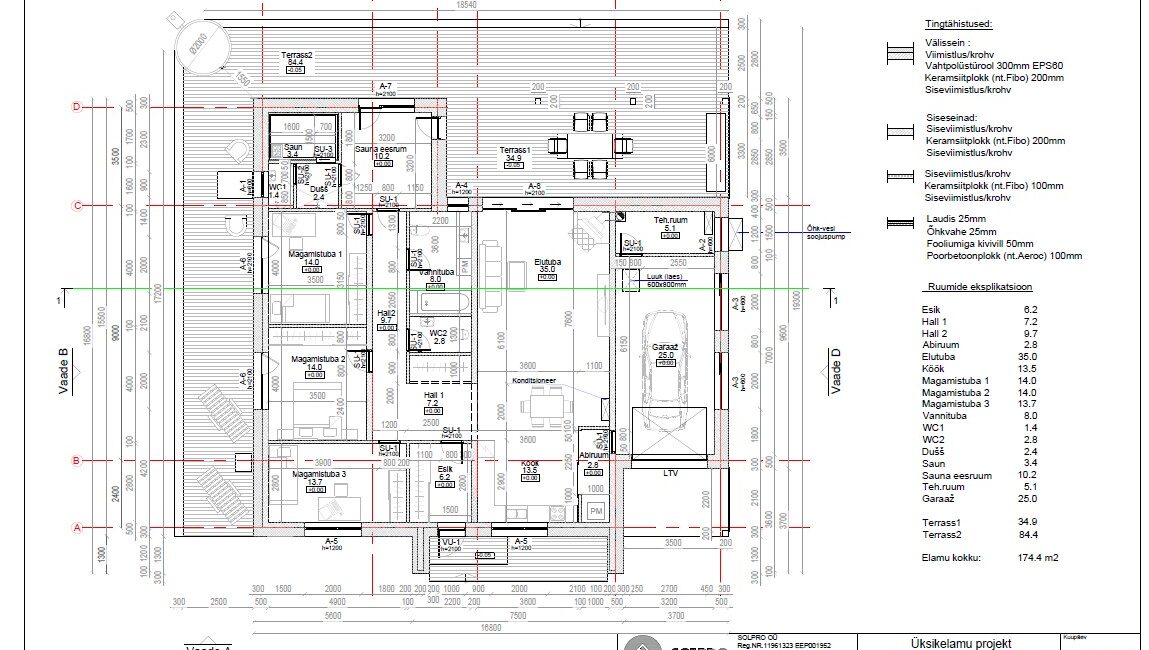
08.12.2022 on väljastatud Ehitusluba üksikelamu püstitamiseks järgmiste parameetritega:
* 1-kordne eramu madalvundamendil kõrgusega 6,2 m
* ehitusaluse pinnaga 284,2 m2
* suletud netopinnaga kokku 174,4 m2 (sellest eluruumide pind 144,3m2, üldkasutatav pind 25,0m2 ja tehnopind 5,1m2)
Küte on ette nähtud õhk-vesi soojuspumba baasil põrandaküttena.
Veevarustus ja kanalisatsioon on tsentraalsed.
Elektri, vee- ja kanalisatsiooni liitumispunktid on kinnistu piiril, liitumised tasutud.
Hind sisaldab käibemaksu
Eelised
- Objekti tüüp Krunt
- Parkimine Jah
- Magamistuba 3
- Vannituba 2
- m² 7001
- Staatus Müüa
- Mugavused Parkimine Sauna Terrass Panipaik Garaaž
Map Location
Teigari tee 24, Viimsi vald, Harjumaa
- 03 Magamistuba
- 01 Vannituba
Estonia, Ekke, Lükati küla, Anija vald, Harju maakond
-
Detailid
46,750€ – 76,500€total








