Overview
-
ID No
22254
About This Listing
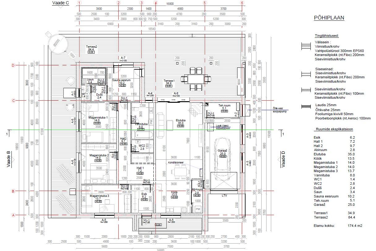
MÜÜA 174.4 m2 ÜHEKORRUSELINE MAJA SUURE TERRASSIGA
Eksklusiivne, originaalsust rõhutav krunt privaatsust, rohelust ja hingamisruumi hindavale inimesele.
Kinnistu paikneb privaatses, looduslikult väga ilusas kohas.
Kinnistul on looduslik loopealne kooslus, osaliselt kaetud metsaga (kõrghaljastuses valdavalt kased, kadakad).
Kinnistu sissesõidule rajatud kaarekujuline valgustusega paekiviaed.
Maja sobib hästi suurele perele, kes soovib kodu privaatses ja avaras asukohas.
Veevarustus ja kanalisatsioon on tsentraalsed.
Eelised
- Objekti tüüp Maja
- Parkimine Jah
- Magamistuba 3
- Vannituba 1
- m² 174,40
- Staatus Müüa
- Asukoht Lootaguse 6, Liikva küla, Harku vald, Harjumaa
- Mugavused Parkimine Terrass
Map Location
Lootaguse 6, Liikva küla
,Harku vald,Harjumaa,Estonia
Estonia, Pirnipuu pst. 190,196
- 03 Magamistuba
- 02 Vannituba
Estonia, Pirnipuu pst. 119, 121, 123, 125, 127, 129, 131, 133, 135, 137 Maardu
- 03 Magamistuba
- 03 Vannituba
Estonia, Lootaguse 2, Liikva küla, Harku vald, Harjumaa
- 03 Magamistuba
- 03 Vannituba






